Email Not Registered. Please Watch The Video To Continue To The Registration Page. Or Enter The Email Address You Signed Up With.
Existing Home | Save Thousands With Communnie. | Save Thousands With Communnie.
BUY SMART! Save Thousands working with Communie RE
Communie Savings
Up To: $20,500
Price Change!
Existing Home
768 24TH ST , Ogden City, Weber County, UT 84401

The Home

Status: Active / Style: Rambler/Ranch /

/SQF 710,000

EST. Mortgage

$/mo*
Mortgage Calculator
Get Pre-Qualified
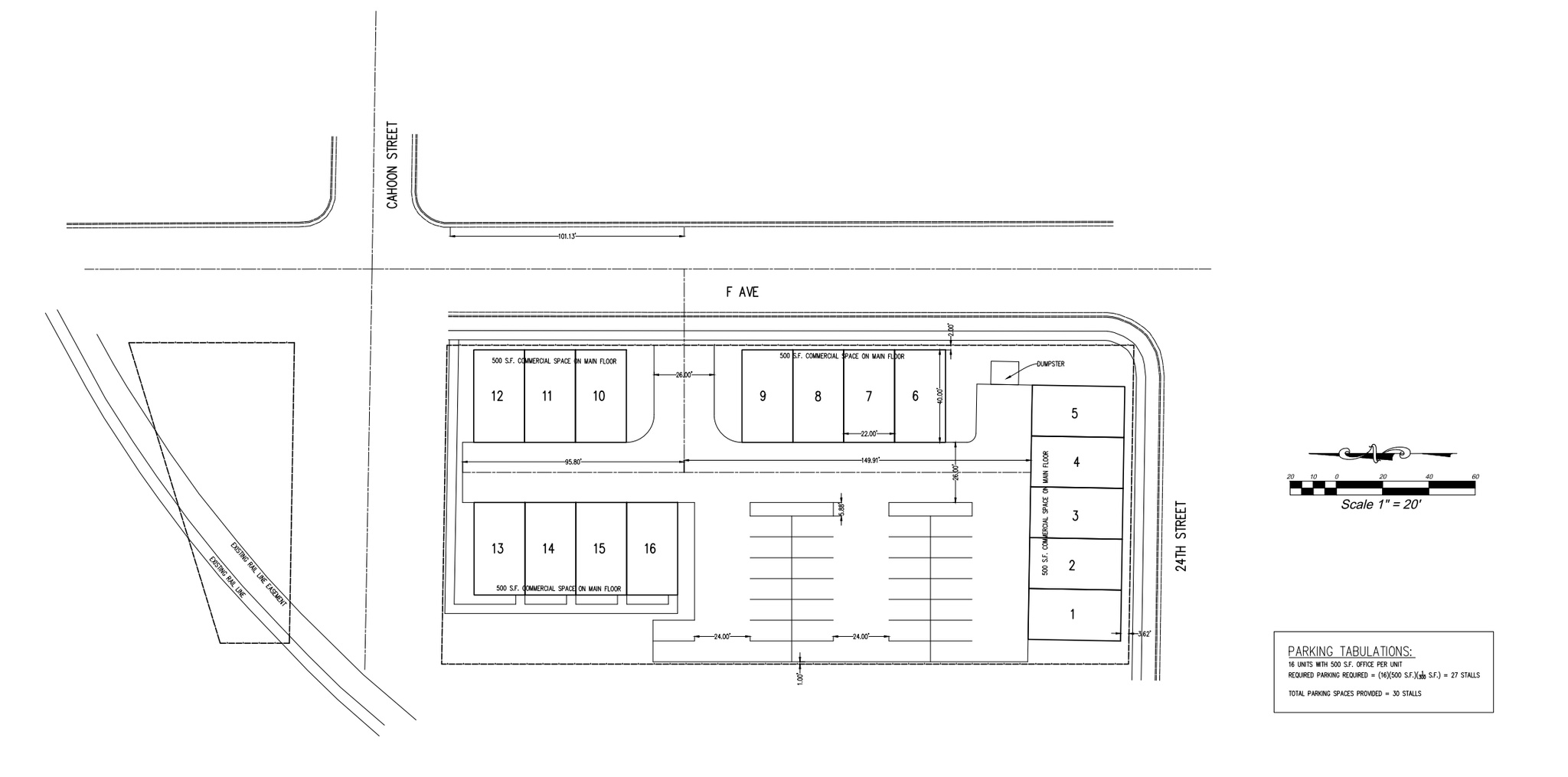
*Big Price Drop* 24th Street Investor/Builder/Developer Opportunity Rental Home + 1.03 Acres Motivated seller, priced for quick sale. Property Details: 1.03-acre lot with single-family home (vacant, proven rental history). Rezone approved by planning commission for 16 mixed-use townhomes (~1,700 sq. ft. residential + 500 sq. ft. commercial, each with 2-car garages). Potential for Phase 2 expansion with additional acreage via vacated city road. Comparable sold new built townhomes are between $475K-$525K. Land value if fully entitled would be $1,100,000. Selling at rezone with plenty of meat on the bone for a quick exit and lots of upside for the new owner. Opportunity: Prime location near new upcoming I-15 interchange, Weber State University, and downtown Ogden. Ogden City redevelopment driving demand for housing and mixed-use projects. Immediate options to lease home for income or use during entitlement/build-out. Not your typical rezone. Planning commission approvals secured include: rezone, development agreement, and code amendment. Ideal for 1031 exchange buyer with immediate utility and strong future upside. Amazing opportunity for an investor, developer, or builder. Buy now, cashflow, build next, cash out later with multiple exit strategies. Full project data room available upon request. All parcel's included in the sale are: 140200004, 1410200002, 140200001, 14020003 Square footage figures are provided as a courtesy estimate only and were obtained from County Assessor. Buyer is advised to obtain an independent measurement.
MLS#: 2110599
Price Decreased From 900,000 To 710,000

0

  • 44866.8 Lot Size Sq. Ft.
  • 1452 Finished Sq. Ft.
  • 3 Beds
  • 2 Baths
  • 2 Garages
  • 710,000
Schedule A Visit
Contact a Communie rep
* Estimated Mortgage based on an average mortgage rate of 6.19 30 Year Fixed. This rate is offered with 20% down and a credit score of 740+ Taxes and Insurance not included.
Property Listed By Equity Real Estate (Premier Elite)
Information deemed reliable but not guaranteed accurate. Buyer to verify all information.
The multiple listing information is provided by Wasatch Front Regional Multiple Listing Service, Inc. from a copyrighted compilation of listings. The compilation of listings and each individual listing are ©2025 Wasatch Front Regional Multiple Listing Service, Inc., All Rights Reserved. The information provided is for consumers' personal, non-commercial use and may not be used for any purpose other than to identify prospective properties consumers may be interested in purchasing.