Email Not Registered. Please Watch The Video To Continue To The Registration Page. Or Enter The Email Address You Signed Up With.
Existing Home | Save Thousands With Communnie. | Save Thousands With Communnie.
BUY SMART! Save Thousands working with Communie RE
Communie Savings
Up To: $11,500
Price Change!
Existing Home
330 E 700 S #L306 , Salt Lake City, Salt Lake County, UT 84111

The Home

Status: Active / Style: Condo; Top Level /

/SQF 260,000

EST. Mortgage

$/mo*
Mortgage Calculator
Get Pre-Qualified
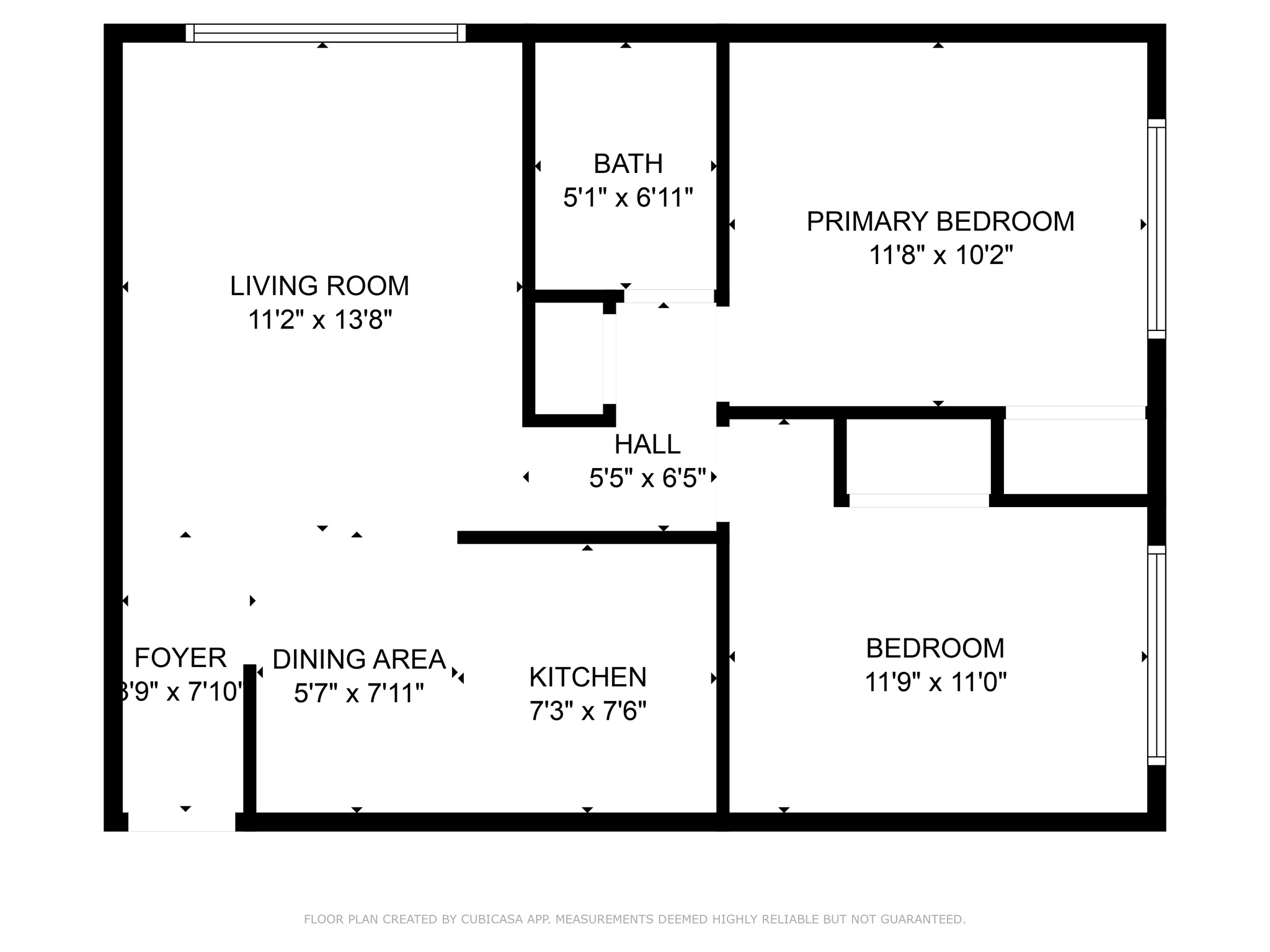
Sleek and modern downtown condo! Newly updated paint, floors, kitchen, and bath. Community amenities include covered parking, fitness center with clubhouse and playground. No laundry in unit - community coin op laundry.
MLS#: 2108914
Price Decreased From 270,000 To 260,000

0

  • 435.6 Lot Size Sq. Ft.
  • 660 Finished Sq. Ft.
  • 2 Beds
  • 1 Baths
  • 260,000
Schedule A Visit
Contact a Communie rep
* Estimated Mortgage based on an average mortgage rate of 6.06 30 Year Fixed. This rate is offered with 20% down and a credit score of 740+ Taxes and Insurance not included.
Property Listed By White Oak & Company, Inc.
Information deemed reliable but not guaranteed accurate. Buyer to verify all information.
The multiple listing information is provided by Wasatch Front Regional Multiple Listing Service, Inc. from a copyrighted compilation of listings. The compilation of listings and each individual listing are ©2026 Wasatch Front Regional Multiple Listing Service, Inc., All Rights Reserved. The information provided is for consumers' personal, non-commercial use and may not be used for any purpose other than to identify prospective properties consumers may be interested in purchasing.