SEARCH
New Communities
Home Builders
Quick Move-ins
Model Homes
Existing Homes
F.A.Q.
Join/Sign In
Menu
Menu
Find a Home
New Communities
Home Builders
Builder Quick Move-ins
Builder Model Homes
Existing Homes
Search
Explore
Build or Buy a Home
How Can I Save
Get Pre Qualified
Financing Services
Communie
What Is Communie
How To Use Communie
Blog
F.A.Q.
Contact Us
BUY SMART!
Save Thousands working with Communie RE
Existing Home In
Bountiful City
,
Davis County
, UT 84010 . Subdivision: VILLA NOVA
Home
/
Utah Existing Homes
/
(1542099 Views)
Communie Savings
Up To:
$14,298
Price Change!
1950 S 200 W #E32 ,
Bountiful City
,
Davis County
, UT 84010
The Home
Status: Sold / Style: Stories: 2 /
/SQF
399,900
EST. Mortgage
$
/mo
*
Mortgage Calculator
Home Price:
Down Payment:
Loan Term:
30 Years Fixed
15 Years Fixed
Interest Rate
Get Pre-Qualified
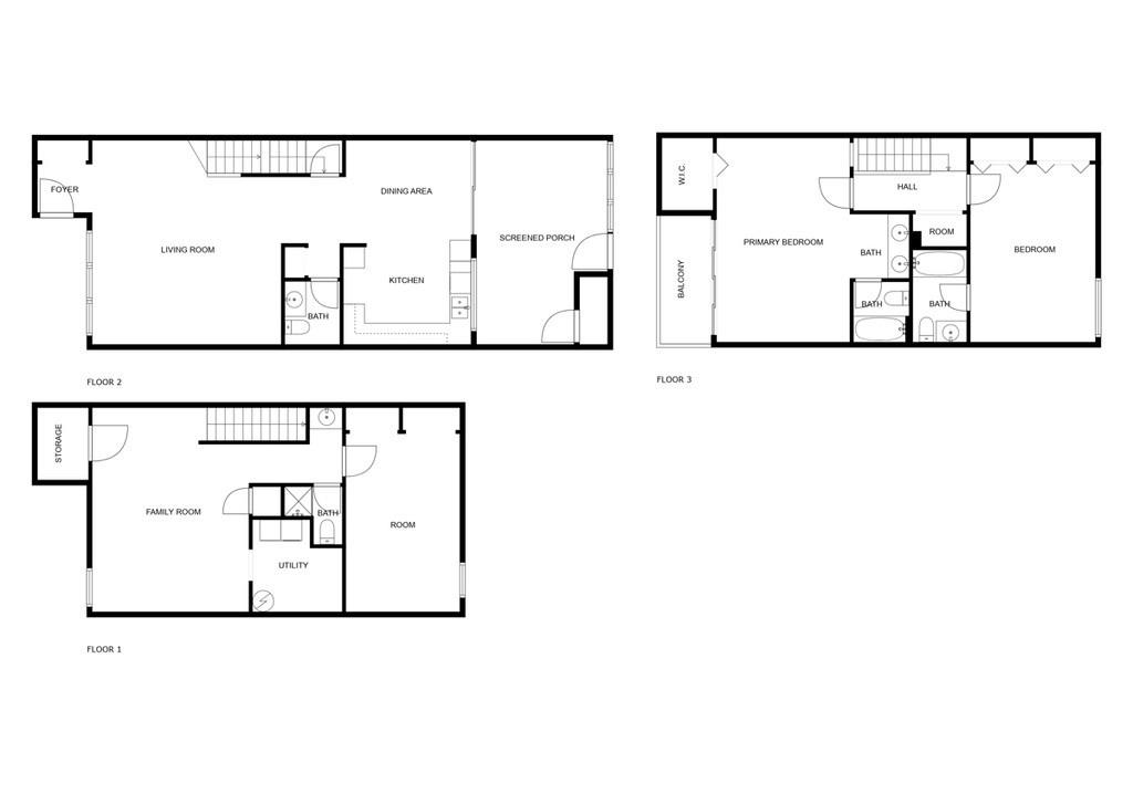
Short term lease to own offer will be considered. Welcome to this beautifully remodeled and spacious townhome/condo offering 2,334 square feet of refined living space. Every detail has been thoughtfully upgraded from new flooring, trim, and paint to energy-efficient lighting and luxury finishes creating a home that blends comfort, style, and functionality. Step into a bright, open-concept living area featuring recessed lighting and abundant natural light. The seamless flow from the living room to the dining area and gourmet kitchen makes this home ideal for both everyday living and entertaining. The gourmet kitchen is a true showstopper, boasting custom white cabinetry, elegant gold hardware, quartz countertops, and a full-wall marble backsplash. Updated stainless steel appliances, undermount stainless steel sink, and modern fixtures complete the space with both beauty and practicality. This home offers two spacious master suites, each with new vanities, sleek tile work, and designer finishes, one even includes a private terrace. An additional bedroom and bathroom, along with a second living area, are located in the fully finished basement, offering flexibility for guests, a home office, or additional family space. Enjoy outdoor living on the secluded back patio, perfect for relaxing or entertaining after a swim in the community pool. Additional highlights include ample storage throughout and a prime location just 15 minutes from Salt Lake City International Airport and downtown SLC. Don't miss this rare opportunity to own a turnkey home in one of Bountiful's most desirable areas. Buyer to verify all.
MLS#: 2108099
Price Decreased From 429,900 To 399,900
0
435.6 Lot Size Sq. Ft.
2334 Finished Sq. Ft.
3 Beds
4 Baths
399,900
Schedule A Visit
Photo & Video Gallery
Questions?
Submit
* Estimated Mortgage based on an average mortgage rate of 6.42 30 Year Fixed. This rate is offered with 20% down and a credit score of 740+ Taxes and Insurance not included.
Property Listed By Berkshire Hathaway HomeServices Elite Real Estate
Information deemed reliable but not guaranteed accurate. Buyer to verify all information.
The multiple listing information is provided by Wasatch Front Regional Multiple Listing Service, Inc. from a copyrighted compilation of listings. The compilation of listings and each individual listing are ©2026 Wasatch Front Regional Multiple Listing Service, Inc., All Rights Reserved. The information provided is for consumers' personal, non-commercial use and may not be used for any purpose other than to identify prospective properties consumers may be interested in purchasing.