SEARCH
New Communities
Home Builders
Quick Move-ins
Model Homes
Existing Homes
F.A.Q.
Join/Sign In
Menu
Menu
Find a Home
New Communities
Home Builders
Builder Quick Move-ins
Builder Model Homes
Existing Homes
Search
Explore
Build or Buy a Home
How Can I Save
Get Pre Qualified
Financing Services
Communie
What Is Communie
How To Use Communie
Blog
F.A.Q.
Contact Us
BUY SMART!
Save Thousands working with Communie RE
Existing Home In
Avon City
,
Cache County
, UT 84328 . Subdivision: LEGACY RANCH
Home
/
Utah Existing Homes
/
(1542885 Views)
Communie Savings
Up To:
$35,300
0 LOT 60 LEGACY RANCH AT MONTE C ,
Avon City
,
Cache County
, UT 84328
The Home
Status: Active / Style: Cabin /
/SQF
1,450,000
EST. Mortgage
$
/mo
*
Mortgage Calculator
Home Price:
Down Payment:
Loan Term:
30 Years Fixed
15 Years Fixed
Interest Rate
Get Pre-Qualified
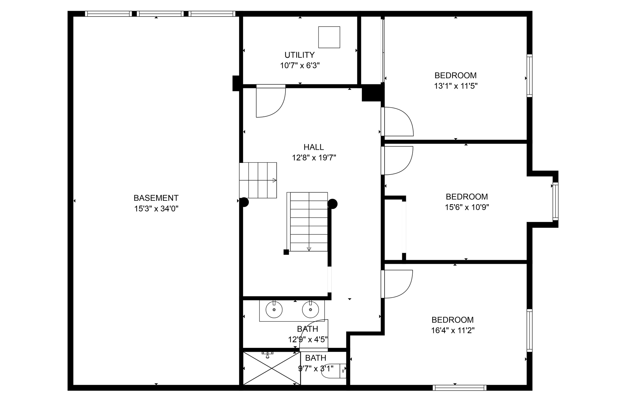
Welcome to Aspen Rise Retreat -Where privacy, peace, and adventure meet. Perched atop 118 private acres in stunning Avon, Utah, Aspen Rise Retreat is the ultimate mountain escape. Surrounded by groves of quaking aspens and endless sky, this over 4,000 sq. ft. cabin offers space to gather, unwind, and reconnect with nature. With 7 spacious bedrooms, 4 bathrooms, a large open kitchen, cozy living room, full mudroom and pantry, 2nd floor loft space, vaulted second floor ceilings, and a huge storage area/ gym with 30' ceilings for all your toys and gear-this cabin was built for hosting family and friends, or simply escaping the noise of everyday life. Positioned along the scenic route to Monte Cristo and backing up to the Cinnamon Creek Recreational Area, the opportunities for hiking, wildlife watching, snowmobiling, and solitude are endless. Located conveniently between Cache Valley and Huntsville, this is your perfect four-season getaway. Whether you're looking for a private family compound, a corporate retreat, or a legacy property-Aspen Rise Retreat offers the kind of tranquility and adventure that's getting harder to find. Square footage figures are provided as a courtesy estimate only and were obtained from floorplan scans and blueprints . Buyer is advised to obtain an independent measurement.
MLS#: 2106768
0
5170572 Lot Size Sq. Ft.
4367 Finished Sq. Ft.
7 Beds
5 Baths
1,450,000
Schedule A Visit
Photo & Video Gallery
Questions?
Submit
* Estimated Mortgage based on an average mortgage rate of 6.42 30 Year Fixed. This rate is offered with 20% down and a credit score of 740+ Taxes and Insurance not included.
Property Listed By KW Utah Realtors Keller Williams
Information deemed reliable but not guaranteed accurate. Buyer to verify all information.
The multiple listing information is provided by Wasatch Front Regional Multiple Listing Service, Inc. from a copyrighted compilation of listings. The compilation of listings and each individual listing are ©2026 Wasatch Front Regional Multiple Listing Service, Inc., All Rights Reserved. The information provided is for consumers' personal, non-commercial use and may not be used for any purpose other than to identify prospective properties consumers may be interested in purchasing.