Email Not Registered. Please Watch The Video To Continue To The Registration Page. Or Enter The Email Address You Signed Up With.
Existing Home | Save Thousands With Communnie. | Save Thousands With Communnie.
BUY SMART! Save Thousands working with Communie RE
Communie Savings
Up To: $14,300
Existing Home
553 N 200 W , Bountiful City, Davis County, UT 84010

The Home

Status: Active / Style: Townhouse; Row-end /

/SQF 400,000

EST. Mortgage

$/mo*
Mortgage Calculator
Get Pre-Qualified
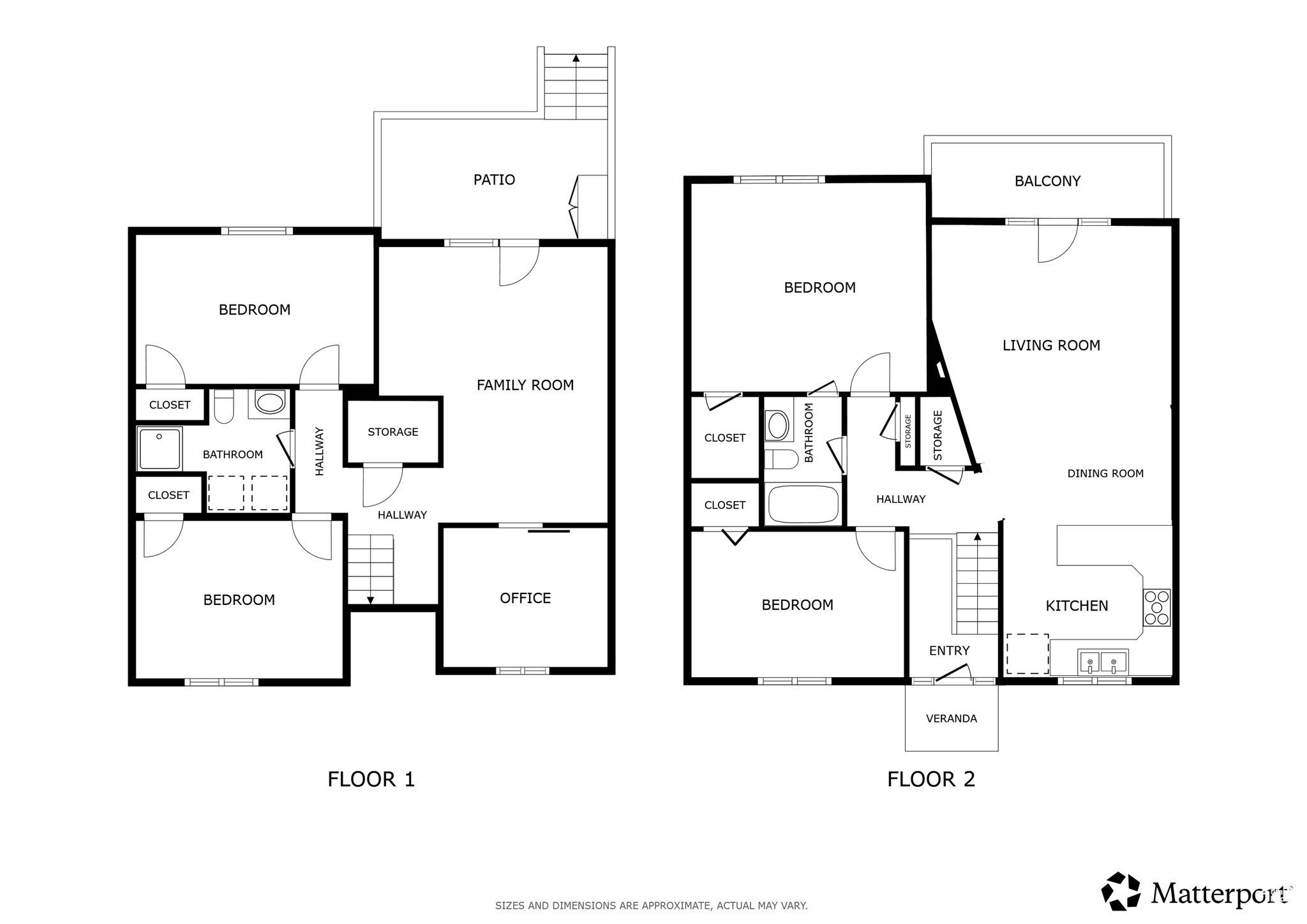
Welcome to Meadowbrook Estates! This spacious 4-bed, 2-bath townhome offers 1,888 sq ft of comfortable living space in a highly sought-after Bountiful neighborhood-just steps from the elementary school and directly across the street from the South Davis Rec Center. The main level features a bright and open great room with a beautiful gas fireplace and mantel, plus a French door that opens to a private balcony overlooking the large, fenced backyard. The kitchen and dining area flow seamlessly from the living space, ideal for everyday living and entertaining. Stylish LVP flooring runs throughout the upstairs, while the lower level offers cozy carpeting. With 2 bedrooms and a full bath on each level, plus two spacious living areas and a versatile den/office, there's room for everyone. The walkout basement leads directly to the fenced yard-perfect for outdoor enjoyment. This home also includes a detached 1-car garage with storage space, as well as two additional designated parking spots (one conveniently located near the front door). Enjoy access to a well-maintained common area green space. Easy access to I-15. New water heater 2022, softener in 2025 and newer dishwasher. HOA fee covers water, sewer, gas, recycling, trash & common area maintenance. Don't miss this opportunity to own a wonderful home in the heart of Bountiful! Mortgage savings may be available for buyers of this listing.
MLS#: 2106711

0

  • 435.6 Lot Size Sq. Ft.
  • 1888 Finished Sq. Ft.
  • 4 Beds
  • 2 Baths
  • 1 Garages
  • 400,000
Schedule A Visit
Contact a Communie rep
* Estimated Mortgage based on an average mortgage rate of 6.07 30 Year Fixed. This rate is offered with 20% down and a credit score of 740+ Taxes and Insurance not included.
Property Listed By REDFIN CORPORATION
Information deemed reliable but not guaranteed accurate. Buyer to verify all information.
The multiple listing information is provided by Wasatch Front Regional Multiple Listing Service, Inc. from a copyrighted compilation of listings. The compilation of listings and each individual listing are ©2026 Wasatch Front Regional Multiple Listing Service, Inc., All Rights Reserved. The information provided is for consumers' personal, non-commercial use and may not be used for any purpose other than to identify prospective properties consumers may be interested in purchasing.