Email Not Registered. Please Watch The Video To Continue To The Registration Page. Or Enter The Email Address You Signed Up With.
Existing Home | Save Thousands With Communnie.
BUY SMART! Save Thousands working with Communie RE
Communie Savings
Up To: $16,098
Price Change!
Existing Home
980 ROCK VIEW DR , Hurricane City, Washington County, UT 84737

The Home

Status: Sold / Style: Rambler/Ranch / New (2025)

/SQF 489,900

EST. Mortgage

$/mo*
Mortgage Calculator
Get Pre-Qualified
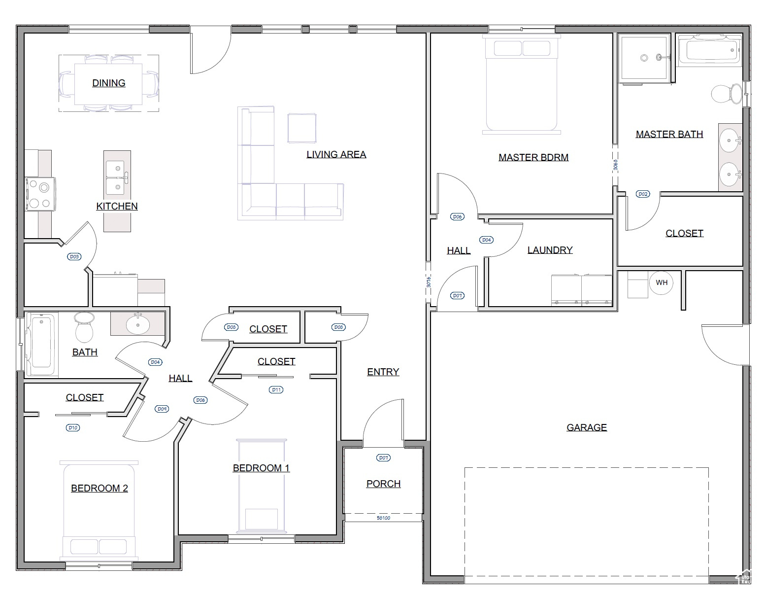
Brand new 3-bedroom, 2-bath home on a spacious .40-acre lot with no HOA, plenty of room to add an RV garage, ADU, or both. Thoughtfully designed with a split floor plan, the primary suite is tucked on one side of the home, while the additional bedrooms sit on the other. The open great room, kitchen, and dining areas feature lots of windows to showcase the panoramic views of Pine Valley Mountain, the Hurricane Cliffs, and surrounding green fields. Modern finishes include quartz countertops, tiled showers, and no carpet in the main living spaces. Enjoy sunsets and summer rainstorms from the large covered patio, or take advantage of the oversized 2-car garage for extra storage. With no homes behind you, this property combines privacy, functionality, and unbeatable views in every direction. *All information is deemed reliable but not guaranteed. Buyer to verify all.
MLS#: 2105986
Price Decreased From 539,900 To 489,900

0

  • 17424 Lot Size Sq. Ft.
  • 1596 Finished Sq. Ft.
  • 3 Beds
  • 2 Baths
  • 2 Garages
  • 489,900
Schedule A Visit
Contact a Communie rep
* Estimated Mortgage based on an average mortgage rate of 6.47 30 Year Fixed. This rate is offered with 20% down and a credit score of 740+ Taxes and Insurance not included.
Property Listed By KW Ascend Keller Williams Realty
Information deemed reliable but not guaranteed accurate. Buyer to verify all information.
The multiple listing information is provided by Wasatch Front Regional Multiple Listing Service, Inc. from a copyrighted compilation of listings. The compilation of listings and each individual listing are ©2026 Wasatch Front Regional Multiple Listing Service, Inc., All Rights Reserved. The information provided is for consumers' personal, non-commercial use and may not be used for any purpose other than to identify prospective properties consumers may be interested in purchasing.